제품소개
패닉 자동문
관리자1
2020-07-20 20:00
23204
|
| 상세설명 |
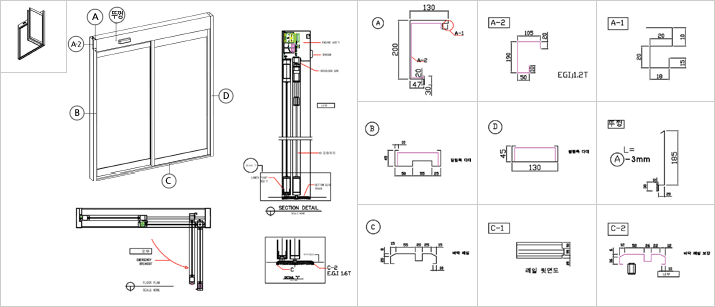
| 패닉자동문이 설치된 곳에서 이삿짐을 옮길때나 대형빌딩이나 아파트, 호텔, 병원 등에서 화재가 발생한 경우 또는 비상탈출이 필요한 경우에 내부에서 밖으로 탈출할 때 자동도어가 열린상태에서 힘차게 밖으로 밀면 수동도어와 자동도어가 밖으로 열림과 동시에 기존크기보다 두배로 출구가 확보되어 화물이나 많은 인원이 한꺼번에 탈출할 수 있는 제품입니다. 기존의 패닉자동문 도어보다 내구성이나 편리성을 보완하였고 FIX 강화유리의 적용 폭을 다양하게 선택할 수 있습니다. 현재 미래자동문의 패닉자동문 도어는 특허청에 특허출원 중입니다. |
| 모 델 | MR - 100P |
| 도어최대폭 | 650 - 1,100㎜ |
| 구동방식 | DC 90W GEARED MOTOR |
| 전달방식 | TIMING BELT 방식 |
| 제어방식 | 마이크로 프로세서 제어 |
| 개폐속도 | 200 ~ 600 ㎜/sec (조절가능) |
| 전원 | 220V 50/60Hz ± 15% |
| 사용온도 | -20 ℃ ~ +50 ℃ |
| 도면 및 절곡도 |
|