회사소개
인사말
회사연혁
인증현황 / 특허
찾아오시는 길
제품소개
오퍼레이터 / 센서 / 스위치
단열 / 세이프도어
단열 / 알루미늄 자동문
패닉 자동문
반자동문
갤러리
자동문
단열 / 세이프도어
방화자동문
온라인견적
온라인견적
고객센터
절곡도
센서 결선도
컨트롤러 사용설명서
PRODUCTS
제품소개
오퍼레이터 / 센서 / 스위치
단열 / 세이프도어
단열 / 알루미늄 자동문
패닉 자동문
반자동문
천정형자동문
관리자1
2020-07-20 20:01
11080
@@3e0I5
일반 자동문을 설치 할 장소의 높이가 낮아 설치가 용이하지 않을 경우 자동문 기게박스(프레임)을 115㎜ 낮추어 설치하면 좀더 많은 공간을 활용할 수 있는 모델입니다.
천정형(기계박스 115mm) 자동문 사양
타 입
외도어
쌍도어
모 델
MR - 100C
MR - 200C
도어중량
120㎏
100㎏ × 2
도어최대폭
400 - 1,300㎜
400 - 1,200㎜
구동방식
DC 90W GEARED MOTOR
전달방식
TIMING BELT 방식
제어방식
마이크로 프로세서 제어
개폐속도
200 ~ 600 ㎜/sec (조절가능)
절연저항
DC 500V 절연저항계로 측정 시 10㏁ 이상
절연내력
AC 1,500V 전압을 1분간 인가 시 견딤
수동개폐시
3.5㎏ - F 이하
전원
220V 50/60Hz ± 15%
사용온도
-20 ℃ ~ +50 ℃
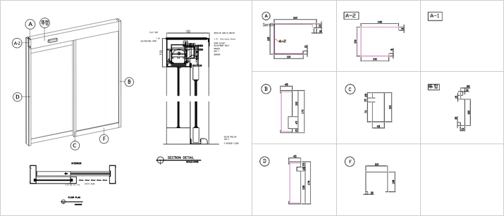
도면 및 절곡도
@@O0q1D [0Bytes]
file.txt [0Bytes]